Skip to main content
There’s still time to apply for 2026 entry!
Find a place with us through UCAS Extra
Close tip window
Norwich University of the Arts
Course Search
Apply
How to apply to
Undergraduate
courses
How to apply to
Postgraduate
courses
Open days
Find out about the next
Undergraduate open days
Find out about the next
Postgraduate open days
Search
Accessibility Settings
Open Menu
Search this site
Search our site
Search
Courses
Student life
International
News and events
Research
Alumni
About
Apply
how to apply to
Undergraduate
courses
how to apply to
Postgraduate
courses
Book an open day
Undergraduate open days
Postgraduate Open Days
Back to main menu
Courses home
Undergraduate
Postgraduate
Short courses
Integrated Foundation (Year 0)
Level 5 Diplomas
Search for a course
Search by course level, course name and more
Enter your search
Submit
Back to main menu
Student life home
Campus Facilities
Accommodation
Living in Norwich
Career opportunities
Student support
Term dates
Back to main menu
International students home
How to apply as an international applicant
International Fees and Scholarships
Information for your country or region
Academic requirements
English language requirements
Visas and immigration
US Federal Aid
Travel information
Our Trusted Agent Network
Back to main menu
News and blogs
Exhibitions and events
Open days and events
Media enquiries
Back to main menu
Research and knowledge exchange home
Our research and knowledge exchange community
Research institutes
Research Groups
Research projects
Research facilities
Partnering with us
Research degrees
Back to main menu
Alumni home
Contact the alumni team
Alumni reunions and events
Supporting Norwich
Back to main menu
About us home
Our History
Our Achievements
Governance
Norwich University Strategy
East Gallery
Equality, diversity, and inclusion
Sustainability at Norwich
Meet our staff
Work at Norwich
Contact us
Explore More
Back to previous menu
Loading...
Accessibility Menu
(Ctrl + U)
Monochrome
Df
Use dyslexia-friendly font
Monochrome
Use a dyslexia-friendly font
Reset all
Home
Student
Campus Building Information
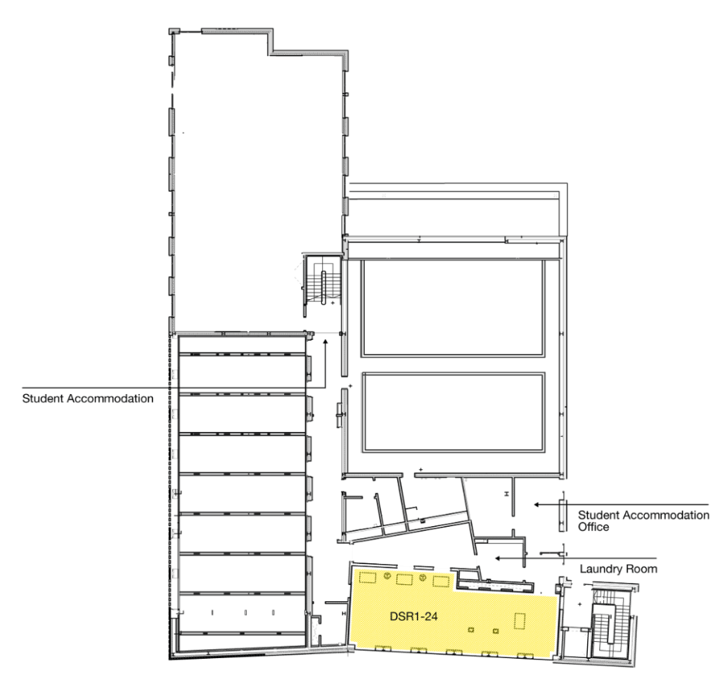
Duke Street Riverside
Duke Street Riverside
Duke Street Riverside Floor Plans
Duke Street Riverside – Lower Ground Floor
Duke Street Riverside – Ground Floor
Duke Street Riverside – First Floor
Campus Building Information